Lämpöpumppu pienen tehon tyypille J-IV Series AJY054LELDH [3Vaihe]
Ominaisuudet
- Tehokkuutta todellisessa käytössä
- Pitkät putket
- Enintään 14 yksikköä* voidaan yhdistää
Teho
Tekniset tiedot
| Nimellistehoalue | 6 HP |
|---|---|
| Yhdistettävien sisäyksiköiden enimmäismäärä*1 | 1 - 14 |
| Sisäyksiköiden yhdistettävä teho | 7.8 - 23.2 kW |
Scroll
| Virtalähde | Vaihe | 3-vaiheinen 3N |
|---|---|---|
| Jännite | 400 V | |
| Taajuus | 50 Hz | |
| Teho | Viilennys | 15.5 kW |
| Nimellinen Lämmitys | 15.5 kW | |
| Maks. Lämmitys | 18.0 kW | |
| Ottoteho | Viilennys | 4.96 kW |
| Lämmitys | 4.17 kW | |
| Nimellinen Lämmitys | 4.17 kW | |
| Maks. Lämmitys | 5.41 kW | |
| EER | Viilennys | 3.12 W/W |
| COP | Nimellinen Lämmitys | 3.71 W/W |
| Maks. Lämmitys | 3.32 W/W | |
| Ilmanvirtausnopeus | 7000 m³/h | |
| Äänenpainetaso*2 | Viilennys | 53 dB(A) |
| Lämmitys | 56 dB(A) | |
| Äänitehotaso | Viilennys | 67 dB(A) |
| Lämmitys | 69 dB(A) | |
| Suurin ulkoinen staattinen paine | 30 Pa | |
| Kompressorin moottoriteho | 3.75 kW | |
| Lämmönvaihtajan ripa | Sininen ripa | |
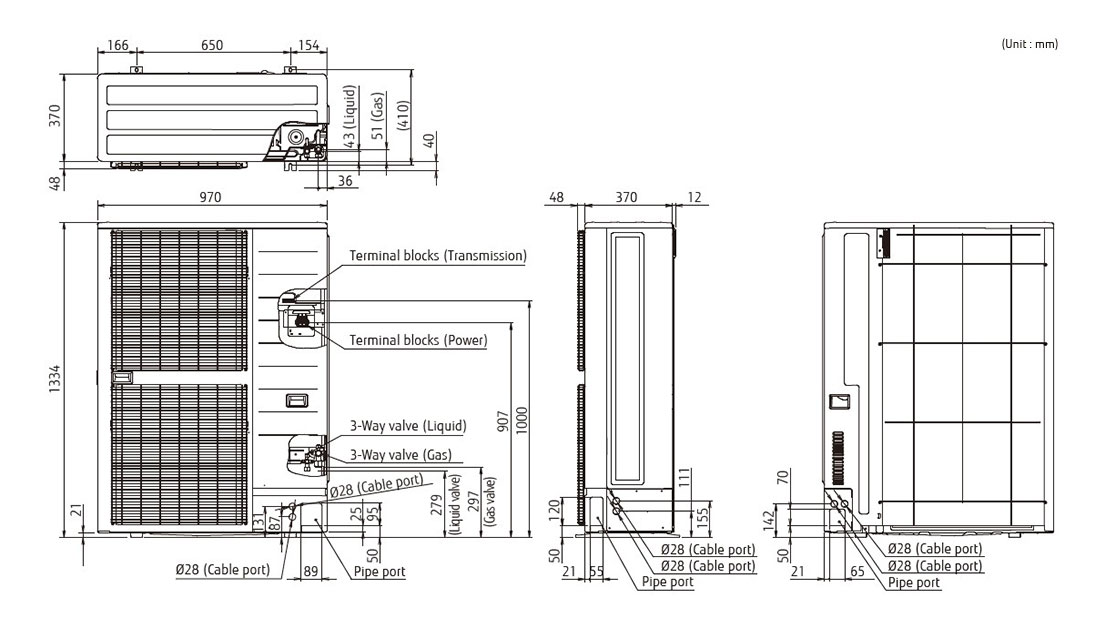
| Nettomitat | Korkeus | 1334 mm |
| Leveys | 970 mm | |
| Syvyys | 370 mm | |
| Nettopaino | 119 kg | |
| Kylmäaine | Tyyppi | R410A |
| Ilmaston lämmityspotentiaali | 2088 | |
| Täyttö | 5.3 kg (11.1 CO2eq–T) | |
| Liitäntäputken halkaisija | Neste | φ9.52 mm |
| Kaasu | φ19.05 mm | |
| Putken kokonaispituus | 180 m | |
| Suurin korkeusero (Ulkoyksikkö: Ylä/ala) |
50 / 40 m | |
| Toiminta-alue | Viilennys | -5 kohteeseen 46 °CDB |
| Lämmitys | -20 kohteeseen 21 °CDB | |
Scroll
- Huomautus:
- Tekniset tiedot perustuvat seuraaviin olosuhteisiin.
- Viilennys:
- Sisälämpötila 27 °CDB / 19 °CWB, ulkolämpötila 35 °CDB / 24 °CWB.
- Lämmitys:
- Sisälämpötila 20 °CDB / (15 °CWB), ulkolämpötila 7 °CDB / 6 °CWB.
- Putken pituus:
- 7,5 m; Ulko- ja sisäyksikön välinen korkeusero: 0 m. Suojaustoiminto saattaa toimia, jos sitä käytetään toiminta-alueen ulkopuolella.
Mitat
Ulkoyksikkö : AJY054LELDH

Suomi | Suomi