Lämmön talteenotto, modulaarinen VR-IV Series AJY144GALDH [3Vaihe]
Ominaisuudet
- Uusi älykäs kylmäaineen ohjaus
- Energiaa säästävä tekniikka, joka tehostaa toimintaa
- Laajennettu liitäntäsuhde
- Lisäasennus pääputkea vaihtamatta
- Tehokkuutta todellisessa käytössä
- Invertterikompressori
- Usean ulkotoiminnon ohjaus
- Lämmönvaihtimen kylmäaineen ohjaus
- Joustava putkiliitäntä
- RB-yksikön joustava asennus
Teho
Tekniset tiedot
| Nimellistehoalue | 16 HP |
|---|---|
| Yhdistettävien sisäyksiköiden enimmäismäärä*1 | 2 - 34 |
| Sisäyksiköiden yhdistettävä teho | 11.3 - 67.5 kW |
Scroll
| Virtalähde | Vaihe | 3-vaiheinen 3N |
|---|---|---|
| Jännite | 400 V | |
| Taajuus | 50 Hz | |
| Teho | Viilennys | 45.0 kW |
| Nimellinen Lämmitys | 42.0 kW | |
| Maks. Lämmitys | 48.0 kW | |
| Ottoteho | Viilennys | 16.71 kW |
| Lämmitys | 11.81 kW | |
| Nimellinen Lämmitys | 11.81 kW | |
| Maks. Lämmitys | 14.98 kW | |
| EER | Viilennys | 2.69 W/W |
| COP | Nimellinen Lämmitys | 3.55 W/W |
| Maks. Lämmitys | 3.20 W/W | |
| Ilmanvirtausnopeus | 13000 m³/h | |
| Äänenpainetaso*2 | Viilennys | 61 dB(A) |
| Lämmitys | 63 dB(A) | |
| Äänitehotaso | Viilennys | 82 dB(A) |
| Lämmitys | 83 dB(A) | |
| Suurin ulkoinen staattinen paine | 80 Pa | |
| Kompressorin moottoriteho | 11.0 kW | |
| Lämmönvaihtajan ripa | Sininen ripa | |
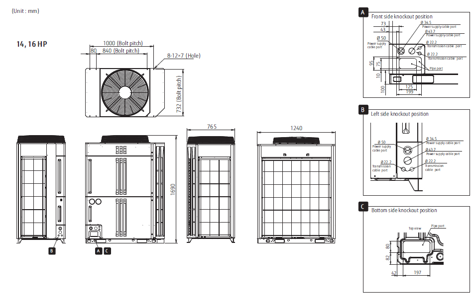
| Nettomitat | Korkeus | 1690 mm |
| Leveys | 1240 mm | |
| Syvyys | 765 mm | |
| Nettopaino | 286 kg | |
| Kylmäaine | Tyyppi | R410A |
| Ilmaston lämmityspotentiaali | 2088 | |
| Täyttö | 11.8 kg (24.6 CO2eq–T) | |
| Liitäntäputken halkaisija | Neste | φ12.7 mm |
| Poistokaasu | φ22.22 mm | |
| Imukaasu | φ28.58 mm | |
| Putken kokonaispituus | 700 m | |
| Suurin korkeusero (Ulkoyksikkö: Ylä/ala) |
50 / 40 m | |
| Toiminta-alue | Viilennys | -10 kohteeseen 46 °CDB |
| Lämmitys | -20 kohteeseen 21 °CDB | |
| Viilennys / Lämmitys | -10 kohteeseen 21 °CDB | |
Scroll
- Huomautus:
- Tekniset tiedot perustuvat seuraaviin olosuhteisiin.
- Viilennys:
- Sisälämpötila 27 °CDB / 19 °CWB, ulkolämpötila 35 °CDB / 24 °CWB.
- Lämmitys:
- Sisälämpötila 20 °CDB / (15 °CWB), ulkolämpötila 7 °CDB / 6 °CWB.
- Putken pituus:
- 7,5 m; Ulko- ja sisäyksikön välinen korkeusero: 0 m. Jos viilennystä käytetään ulkolämpötilan ollessa alle -5 C, ulkoyksikkö on asennettava korkeammalle tai samalle tasolle kuin sisäyksiköt.
Mitat
Ulkoyksikkö : AJY144GALDH
