AUXS024GLEH
Specifications
| Power Source | Phase | Single phase | |
|---|---|---|---|
| Voltage | 230 V | ||
| Frequency | 50 Hz | ||
| Capacity | Cooling | 7.1 kW | |
| Heating | 8.0 kW | ||
| Airflow Rate | Cooling | High | 950 m³/h |
| Medium High | 890 m³/h | ||
| Middle | 860 m³/h | ||
| Low High | 810 m³/h | ||
| Low | 770 m³/h | ||
| Quiet | 540 m³/h | ||
| Heating | High | 1040 m³/h | |
| Medium High | 990 m³/h | ||
| Middle | 930 m³/h | ||
| Low High | 880 m³/h | ||
| Low | 840 m³/h | ||
| Quiet | 540 m³/h | ||
| Sound Pressure Level*2 | Cooling | High | 43 dB(A) |
| Medium High | 42 dB(A) | ||
| Middle | 41 dB(A) | ||
| Low High | 40 dB(A) | ||
| Low | 38 dB(A) | ||
| Quiet | 29 dB(A) | ||
| Heating | High | 46 dB(A) | |
| Medium High | 45 dB(A) | ||
| Middle | 43 dB(A) | ||
| Low High | 42 dB(A) | ||
| Low | 40 dB(A) | ||
| Quiet | 29 dB(A) | ||
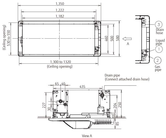
| Net Dimensions | Height | 200 mm | |
| Width | 1240 mm | ||
| Depth | 500 mm | ||
| Net Weight | 25.0 kg | ||
| Connection Pipe Diameter | Liquid (Flare) | φ9.52 mm | |
| Gas (Flare) | φ15.88 mm | ||
| Drain Hose Diameter | φ25(I.D.), φ32(O.D.) mm | ||
| EV Kit (optional) | EV Kit (optional) | ||
Scroll
Dimensions
Indoor Unit : AUXS024GLEH

Europe | English