Type modulaire à récupération de chaleur Série VR-IV AJY288GALDH
Caractéristiques
- Nouveau contrôle intelligent du fluide frigorigène
- Technologie d'économie d'énergie pour une efficacité optimale
- Rapport de connexion étendu
- Installation supplémentaire sans modification du tuyau principal
- Efficacité en fonctionnement réel
- Compresseur à onduleur
- Commande de plusieurs unités extérieures
- Contrôle du fluide frigorigène dans l'échangeur de chaleur
- Raccords de tuyauterie flexibles
- Installation flexible de l'unité RB
Caractéristiques techniques
| Capacité nominale | 32 HP |
|---|---|
| Nombre max. d'unités intérieures connectables*1 | 2 - 64 |
| Puissance des unités intérieures connectables | 22.5 - 135.0 kW |
Spirale
| Source d'alimentation | Phase | Triphasé |
|---|---|---|
| Tension | 400 V | |
| Fréquence | 50 Hz | |
| Puissance | Refroidissement | 90.0 kW |
| Chauffage | 84.0 kW | |
| Puissance absorbée | Refroidissement | 33.42 kW |
| Chauffage | 23.62 kW | |
| EER | Refroidissement | 2.69 W/W |
| COP | Chauffage | 3.56 W/W |
| Débit d'air | 13000 + 13000 m³/h | |
| Niveau de pression acoustique | Refroidissement | 64 dB(A) |
| Chauffage | 66 dB(A) | |
| Pression statique externe max. | 80 Pa | |
| Puissance du moteur du compresseur | 11 x 1 + 11 x 1 kW | |
| Ailette de l'échangeur de chaleur | Ailette bleue | |
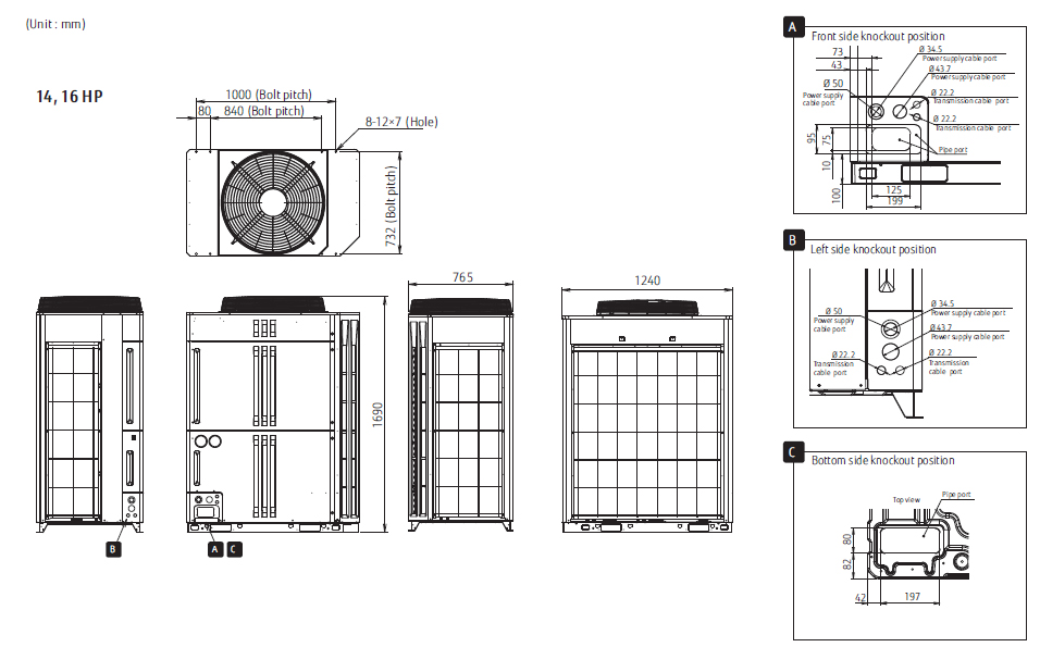
| Dimensions nettes Hauteur X Largeur X Profondeur |
1690 x 1240 x 765 mm
1690 x 1240 x 765 mm |
|
| Poids net |
286 kg
286 kg |
|
| Fluide frigorigène | Type | R410A |
| Potentiel de réchauffement global | 2088 | |
| Charge |
11.8 kg
(24.6 CO2eq–T)
11.8 kg (24.6 CO2eq–T) |
|
| Diamètre de liaisons frigorifiques | Liquide | φ19.05 mm |
| Gaz de décharge | φ28.58 mm | |
| Gaz d'aspiration | φ34.92 mm | |
| Différence de hauteur max. (Unité extérieure: Supérieur(e)/inférieur(e)) |
50 / 40 m | |
| Plage de fonctionnement | Refroidissement | -10 à 46 °CDB |
| Chauffage | -20 à 21 °CDB | |
| Refroidissement / Chauffage | -10 à 21 °CDB | |
Spirale
- Remarque :
- Les caractéristiques techniques sont basées sur les conditions suivantes.
- Refroidissement :
- Température intérieure de 27 °C TS / 19 °C TH et température extérieure de 35 °C TS / 24 °C TH.
- Chauffage :
- Température intérieure de 20 °C TS / (15 °C TH) et température extérieure de 7 °C TS / 6 °C TH.
- Longueur des tuyaux :
- 7,5 m ; différence de hauteur entre l'unité extérieure et l'unité intérieure : 0 m. Pour un refroidissement avec une température de l'air extérieur inférieure à -5 °C, l'unité extérieure doit être installée au même niveau ou plus haut que les unités intérieures.
Dimensions
Unité extérieure : AJY144GALDH / AJY144GALDH

France | Français