インバーター冷暖房エアコン 「ノクリア」 ZNシリーズ AS-ZN252M
主な特長
- 氷点下でも足元からしっかりあたためる
- 最高60°C(注1)の高温風、あったかアップ機能
- 除霜運転時の温度低下を抑える、ホットキープ&クイック除霜(注2)
- 外出時などに室温の下がりすぎを防止する10℃暖房
- 付着カビ菌も除菌、熱交換器加熱除菌(注3)
畳数の目安
オープン価格 (価格は販売店にお問い合わせください)
公益財団法人日本デザイン振興会 2021年グッドデザイン賞受賞(空調家電・機器)
受賞対象機種:2022年ZNシリーズ
ノルトライン・ヴェストファーレン・デザインセンター(ドイツ)
レッドドットデザイン賞 プロダクトデザイン2021受賞
受賞対象機種:2022年ZNシリーズ
仕様
- 電源 :
単相 100V
- コンセント :
IL型
| 冷房 | 畳数の目安 | 7~10畳(11~17m²) |
|---|---|---|
| 能力 | 2.5kW(0.6~3.5kW) | |
| 消費電力 | 460W(130~850W) | |
| 暖房 | 畳数の目安 | 6~8畳(10~13m²) |
| 能力 | 2.8kW(0.6~7.1kW) | |
| 消費電力 | 485W(110~2,000W) |
外気温2℃時 暖房能力 5.4kW
外気温-15℃時 暖房能力 4.3kW
| 外形寸法 | 室内機 | 高さ | 293mm |
|---|---|---|---|
| 幅 | 798mm | ||
| 奥行 | 385mm | ||
| 質量 | 16.5kg | ||
| 室外機 | 高さ | 632mm | |
| 幅 | 799mm※ | ||
| 奥行 | 290mm※ | ||
| 質量 | 37kg |
- ※
- 室外機の外形寸法はバルブカバーや固定脚を除いた寸法です。バルブカバーや固定脚を含めた寸法は、据付スペース図をご確認ください。
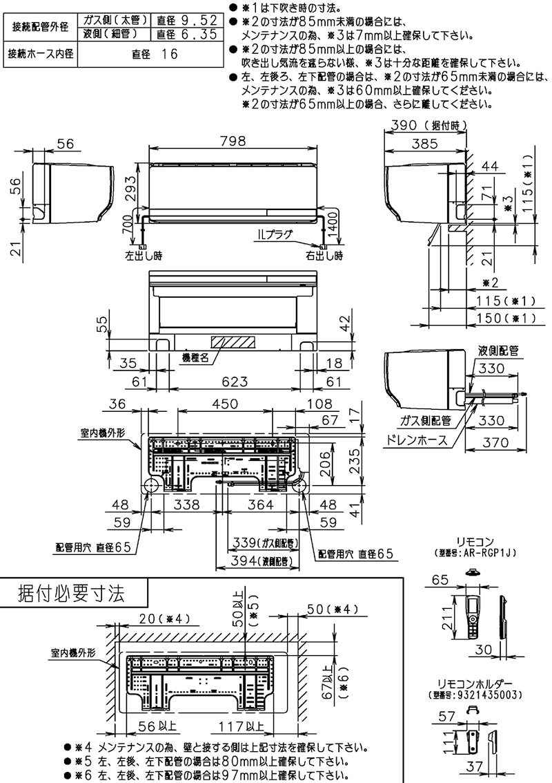
寸法
室内機 : AS-ZN252M-W

室外機 : AO-ZN252M

やむをえず吸入口および吹出口に壁などの障害物がある場所に室外ユニットを据え付ける場合は、左側面は 100mm以上、背面は 100mm以上、右側面は 250mm以上、正面は 300mm以上 のスペースを確保してください。
- ※
- ただし、その場合には冷暖房能力および入力は10%程度悪化する場合があります。
- 注1 最高60°C:
- AS-ZN402M2において。当社環境試験室(14畳)、外気温-15℃、設定温度25℃、室温到達時、設定風量 強風、風向位置 暖房標準、あったかアップ設定とハイパワー設定時、約30分間吹き出し口付近の最高温度を確認。風量は暖房定格に対して約50%低下。設置環境、使用状況により60℃にならない場合があります。AS-ZN252M、AS-ZN282M2は、外気温2℃時。
- 注 ホットキープ&クイック除霜:
- 使用環境によって霜取り運転の時間、室温低下、またあらかじめ上げておく温度の度合いは異なります。使用環境によっては、温度を上げられない場合や、除霜時間が短くならない場合があります。
- 注3 熱交換器加熱除菌:
- AS-ZN252M2において。
- [試験方法]外気27℃、湿度78%の試験室(約6畳)において。加熱除菌運転前と後との比較。10分間で細菌 99%以上、カビ菌 99%以上の減少を確認(細菌一種、カビ菌一種で評価)
- [試験機関名](一財)北里環境科学センター
- [報告書No.]北生発2017_0370号。
- 熱交換器の一部の菌液を回収し評価。動作環境によって効果が低下する場合があります。
- 加熱除菌運転中は室温が上昇することがあります。お部屋に人がいない時のご使用をおすすめします。本機能はニオイや汚れを除去する機能ではありません。
- ・
- オープン価格の商品は希望小売価格を定めておりません。
- ・
- 製品の色はモニター表示ですので、実際の商品の色とは若干異なる場合があります。お買い求めの際は店頭でお確かめください。
- ・
- ※※=このマークは、特定化学物質に関する「環境配慮情報」の識別マークです。
- ※
- 「nocria」は株式会社ゼネラルの世界的な商標です。
- ※
- 「ダブルAI」「I-PAM」「あったかアップ」「ゴク暖」「オーダーメイド快適」「DUAL BLASTER」「デュアルブラスター」「nocria」「ノクリア」「ハイブリッド気流」「パワーディフューザー」「不在ECO」「さらさら冷房」「ひかえめ」「ウイルカット・フィルター」「ハイドロフィリック熱交換器」は、株式会社ゼネラルの商標または登録商標です。
- ※
- 記載されている各種名称、会社名、商品名などは各社の商標もしくは登録商標です。
- ※
- 本ページおよび動画に記載されているシステム名、製品名等には、必ずしも(®、™)を付記していません。
- ※
- 本ページ内にある掲載画像および動画で使用しているエアコンは、実際と異なる場合があります。
- ※
- 掲載画像はすべてイメージです。



